- ★お気に入りに追加
- この物件に対して問い合わせる
- 印刷用ページを開く
- マッチングメール登録へ
| 物件番号 | 2300830 | 物件種目 | 倉庫 |
|---|
| 所在地 | 東京都足立区扇2丁目 | ||
|---|---|---|---|
| 賃料(月額) | 49.5万円(坪単価:8,416円)消費税込み | ||
| 敷金・礼金等 | 敷金:2ヶ月 礼金:2ヶ月 更新料:新賃料の1.5ヶ月分 | ||
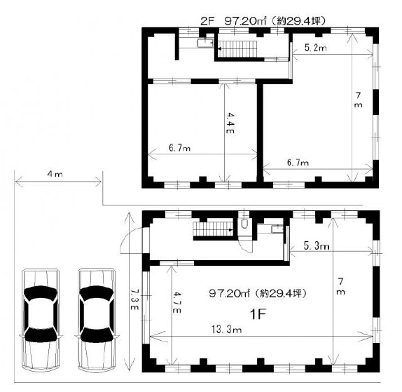
| 建物面積 | 194.4m²/58.81坪 | 構造/階数 | 鉄骨造/2階建ての1~2階部分 |
| 用途地域 |
工業地域 用途地域について |
登録日
|
2026年3月3日 |
| 沿線/駅 | 日暮里舎人ライナー/扇大橋駅 徒歩7分 | 高速道路出入口 | |
| 各階面積 | 1F:97.2m²/29.4坪 2F:97.2m²/29.4坪 | ||
|---|---|---|---|
| 道路幅員 | 西 4m | 駐車場 | 有 駐車可能台数:3台 |
| 現況 | 入居中 | 引渡し | 26年04月上旬予定 |
| 築年月 | 1993年01月 | ||
| 契約期間 | 8年 定借 | 都市計画 | 市街化区域 |
| 建築確認 | |||
| 設備関連 | 上水道 電気引き込み有 トイレ(残置物) エアコン 空気清浄機(残置物) 本下水 流し台 事務所有 換気扇(残置物) | ||
| 周辺状況 | 近隣民家無 大型車輌不可 | ||
| その他 |
*8年定期建物賃貸借契約(再契約応相談) *火災保険加入要 *保証会社加入要 ※写真は、以前の募集当時に撮影したものなので、現況と異なる場合があります。現況優先となります。 |
||
| 前テナント様業種 | |||
| 取引態様 | 仲介 | ||
| 大型車輌 | 不可 | ヤード | 有 |
|---|---|---|---|
| 近隣住宅 | 無 | プラットホーム | 無 |
| 事務所 | 有 | クレーン | - |
| リフト/EV | 無 | ||
| 建物間口・奥行き | 間口:7.3m 奥行き:13.3m |
|---|
担当者からのコメント
|
|---|
|
*工業地域 *近隣民家無 |
※概算となりますので、実際の初期費用等に関してはお気軽にお問い合わせ下さい。
賃料
495,000円
仲介手数料
495,000円
保証会社金額
495,000円
保証金
0円
敷金
990,000円
礼金
990,000円
日割り賃料
日
※日割り賃料は1ヶ月を
30日換算で計算しております。
-
事前連絡なしの現地への突然の訪問はご遠慮ください。
募集物件ごとに前テナント入居中・家主事情・テナントの諸事情等もあり、ごくまれですが、直接物件を見に行かれた事によるトラブルが発生しています。
現地、見に行かれる際は、必ず事前に弊社担当者までご連絡ください。 -
現地業者看板には直接連絡しないでください。
現地看板に連絡されますと仲介手数料の2重請求となってしまう恐れがあります。
物件についての質問等は必ず弊社(三基建設)TEL 03-5200-0999 までご連絡ください。
土曜(第1を除く)、日曜、祝日は定休日。
メールでのご質問は toiawase@sanki.cc まで -
設備について
必ずしも法令に基づく届け出等がされていないものもあります。契約時には必ず弊社担当までご確認ください。 -
前テナント様業種について
必ずしも営業可能な業種とは限りませんので用途地域の制限等弊社担当までご確認ください。 - 大型車両欄の「可」の表示については前面道路幅員が概ね6m以上の道路として住宅地図上から判断したものです。実際については現地をご確認ください。
-
近隣住宅欄の「無」の表示については住宅地図上で隣接する住宅が無く、10m以下の道路を挟んだ向かいに住宅が無いことを基準にしております。実際については現地をご確認ください。
-
2階面積が1階面積の3分の1の建物には平家建と記載しております。
-
「全文キーワード」による検索は、大型車両・近隣住宅などの「可・不可」「有・無」の項目は検索されません。
- 高さ・土地面積について
高さ等の寸法について、必ずしも現地を計測したものではない場合があります。実際については現地をご確認ください。
土地面積については航空写真等を利用し計測した概算面積を記載している物件もあります。予めご了承願います。 -
賃料以外に、共益費・電気基本料等、家主様に支払うべき費用が発生する場合があります。
掲載には充分注意しておりますが、入居の際には弊社担当者にご確認ください。 - 本ページ更新中に成約することもございます。あらかじめ御了承ください。
お探しの条件に近い物件
| 種目 |
貸倉庫 |
|---|---|
| 所在地 | 東京都足立区鹿浜2丁目 |
| 賃料(月額) | 49.2(坪単価:11,201円) |
| 建物面積 | 145.2m²/43.92坪 |
| 種目 |
貸倉庫 |
|---|---|
| 所在地 | 東京都葛飾区宝町2丁目 |
| 賃料(月額) | 38.5(坪単価:8,158円) |
| 建物面積 | 156m²/47.19坪 |























